Trilocale in vendita

Borgaro Torinese, Via Montessori
€ 285.000
3 locali 3 locali
90 Mq 90 Mq
1 bagno 1 bagno

Trilocale in vendita

Borgaro Torinese, Via Montessori

Descrizione annuncio

Nel cuore di Borgaro Torinese, proponiamo un appartamento di recente costruzione, situato al piano medio di un edificio moderno dotato di ascensore. L'appartamento viene venduto compreso di mobilio.

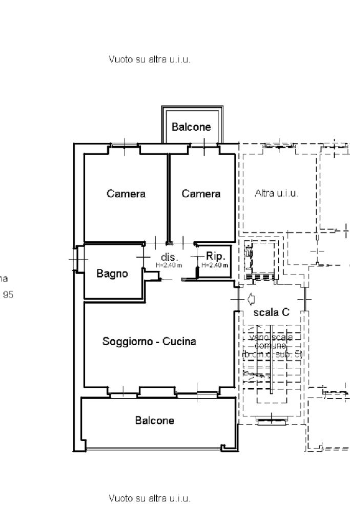
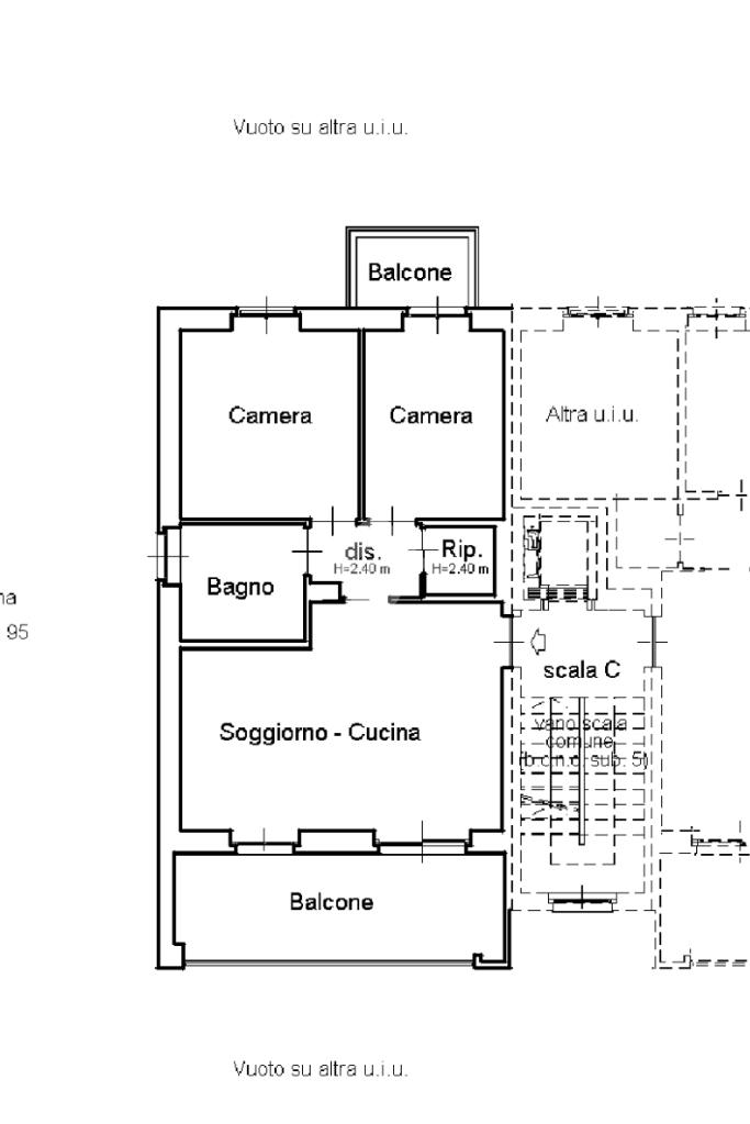
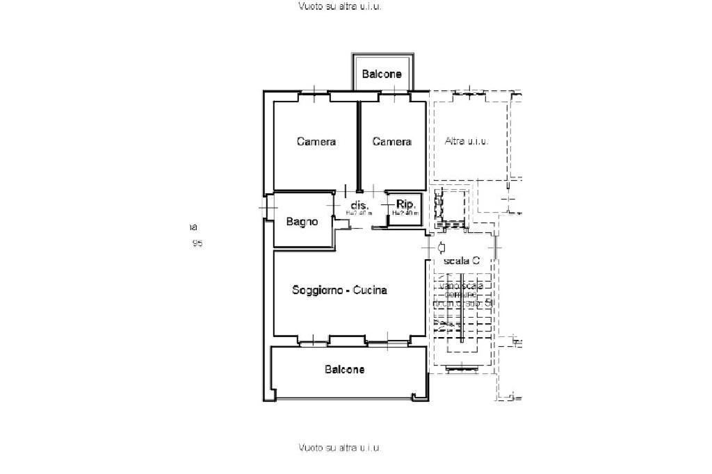
L'immobile, di 90 mq, offre spazi ben distribuiti e funzionali. Entrando, si accede a un luminoso soggiorno living con cucina che si apre su un grande terrazzo, ideale per momenti di relax all'aperto.

La zona notte comprende due camere da letto, entrambe accoglienti e ben illuminate, un bagno moderno e uno spazioso ripostiglio che funge anche da lavanderia. Un balcone aggiunge ulteriore spazio esterno.

L'appartamento è dotato di aria condizionata, garantendo comfort in ogni stagione. Completa la proprietà un box auto, offrendo comodità e sicurezza. Costruito nel 2020, l'immobile si presenta in ottime condizioni, pronto per essere abitato. La posizione strategica consente di raggiungere facilmente i principali servizi e collegamenti della zona.

Per avere ulteriori informazioni o per fissare un appuntamento può chiamarci al numero oppure , mandarci un sms al nostro numero whatsapp o passate a trovarci presso l'ufficio TECNOCASA in Via Gramsci, 17 (Piazza Agorà) . Se fosse interessato ad una valutazione GRATUITA e SENZA IMPEGNO del Suo immobile, siamo a Sua completa disposizione!

Le ricordiamo, inoltre, che la nostra struttura offre CONSULENZE DI MUTUI!

Mostra tutto

Nelle vicinanze

Trasporto pubblico Trasporto pubblico
Borgaro Torinese
Borgaro Torinese
860 m
Venaria
Venaria
2,4 Km
Torino
Torino
100 m
Borgaro (v. Lanzo 102)
Borgaro (v. Lanzo 102)
120 m
Ricariche auto elettriche Ricariche auto elettriche
Palazzetto dello Sport Borgaro | EnelX
240 m
Borgaro Torinese Lanzo | EnelX
490 m
Borgaro Torinese Gramsci | EnelX
530 m
Borgaro Torinese Biblioteca Civica | EnelX
1,1 Km
Scuole Scuole
Scuola primaria "Grosa"
280 m
Scuola primaria "Defassi"
660 m
Scuola secondaria di primo grado "Levi"
690 m
Scuola Elementare Edmondo de Amicis
2,5 Km
Scuola Primaria Parificata "Barolo"
2,5 Km
Farmacia Farmacia
Farmacia
550 m
Farmacia Comunale 2
2,5 Km
Farmacia San Rocco
2,6 Km
Farmacia Comunale 25
3,0 Km
Ospedali Ospedali
Ospedale Venaria - Emergency
2,7 Km
Ospedali
2,7 Km
Supermercati Supermercati
Supermercati
170 m
Aldi
1,2 Km
Bennet
2,2 Km
iN's Mercato
2,4 Km
Ekom
2,5 Km
Negozi Negozi
Negozi
460 m
Pane e Dolcezze
2,6 Km
Bar Bar
Bar
430 m
La Luna
470 m
Caffè del Pettegolezzo
2,9 Km
Padiglione d'Ercole
2,9 Km
Ristoranti Ristoranti
du village
280 m
Ristoranti
320 m
Trattoria Port Dij Gai
1,9 Km
El Chico Loco
1,9 Km
La lanterna
2,5 Km
Mostra tutto

Caratteristiche

Rif.:
61134553
Piano:
2 di 5 con ascensore (Piano medio)
Box:
1
Balconi:
1
Terrazzi:
1
Camere da letto:
2
Mostra tutto
Prezzo Prezzo
€ 285.000
Rata mutuo Rata mutuo
€ 1.314 / mese
Spese annue Spese annue
€ 1.200
Proponi il tuo prezzoProponi il tuo prezzo

Classe Energetica

A4
A4
A4
A4
A4
A4
A4
A4
A4
EP invernale del fabbricato:
EP estiva del fabbricato:
Anno di costruzione:
2020
Riscaldamento:
Autonomo
Tipo impianto:
A pavimento
Tipo alimentazione:
Metano

Ti interessa visionare l'immobile?

Fissa un appuntamento  Fissa un appuntamento

Richiedi informazioni

* Questi campi sono obbligatori

Calcola il tuo mutuo

Semplice e senza impegno
Anticipo

( % )
Mutuo

( % )

pochi semplici passi

inserisci i tuoi dati
Questionario completato
Grazie per aver richiesto un appuntamento senza impegno con un nostro Consulente del Credito e Assicurativo.

Hai inserito correttamente tutti i dati necessari e a breve riceverai una e-mail con un link da convalidare per inviare i tuoi dati.
Affiliato
Studio Borgaro Sas
Via Gramsci, 17 10071 Borgaro Torinese (TO)

Il nostro staff


  • Giosuè Andrea Confalone
    Affiliato

  • Rebecca Gamerro
    Coordinatrice

  • Giorgio Petruzzi
    Affiliato
Via Gramsci, 17 10071 Borgaro Torinese (TO)
Zona: Borgaro Torinese
Mostra su mappa
Orari: Dal Lunedi al Venerdi dalle 09.000 alle 12.30 e dalle 15.00 alle 20.00. Sabato dalle 09.00 alle 12.30 e dalle 15.00 alle 19.00
Affiliato
Studio Borgaro Sas
Via Gramsci, 17 10071 Borgaro Torinese (TO)

2025 Tecnocasa Franchising S.p.A. - P. IVA 08365160152 - Via Monte Bianco 60/A 20089 Rozzano (MI). Ogni agenzia ha un proprio titolare ed è autonoma. Privacy policy | Policy utilizzo | Cookie policy