Quadrilocale in vendita

Borgaro Torinese, Viale Martiri della Libertà
€ 209.000
Prezzo aggiornato
4 locali 4 locali
99 Mq 99 Mq
2 bagni 2 bagni

Quadrilocale in vendita

Borgaro Torinese, Viale Martiri della Libertà

Descrizione annuncio

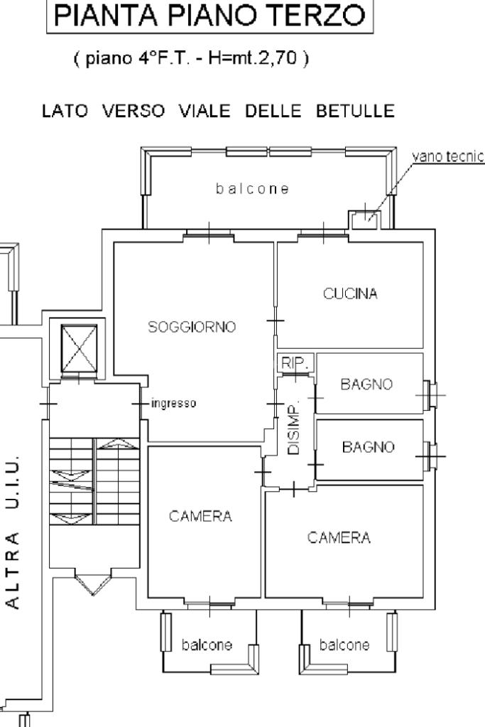
Nel comune di Borgaro Torinese, proponiamo un appartamento in vendita situato al terzo piano, a due passi dai principali servizi. L'immobile si estende su una superficie di 100 mq e offre una disposizione funzionale con quattro locali.

La zona giorno è composta da un ampio soggiorno, ideale per momenti di relax e convivialità che affaccia su un grande balcone con esposizione ovest ideale anche per mangiare all'esterno. La cucina abitabile, separata, permette di gestire al meglio gli spazi dedicati alla preparazione dei pasti. La zona notte comprende due camere da letto, entrambe ben illuminate e spaziose, adatte a soddisfare le esigenze di una famiglia. Completano la proprietà due bagni, entrambi finestrati, e un comodo ripostiglio.

L'appartamento è inserito in un contesto residenziale tranquillo, con servizi e collegamenti facilmente accessibili. La posizione al piano alto garantisce una buona luminosità e una vista aperta sui dintorni. Una soluzione abitativa che coniuga comfort e praticità.

Completa la soluzione un pratico box auto singolo e cantina di pertinenza accessibili con ascensore.

Per avere ulteriori informazioni o per fissare un appuntamento può chiamarci al numero oppure , mandarci un sms al nostro numero whatsapp o passate a trovarci presso l'ufficio TECNOCASA in Via Gramsci, 17 (Piazza Agorà) . Se fosse interessato ad una valutazione GRATUITA e SENZA IMPEGNO del Suo immobile, siamo a Sua completa disposizione!

Le ricordiamo, inoltre, che la nostra struttura offre CONSULENZE DI MUTUI!

Mostra tutto

Nelle vicinanze

Trasporto pubblico Trasporto pubblico
Borgaro Torinese
Borgaro Torinese
430 m
Venaria
Venaria
2,6 Km
Canavere N. 3
Canavere N. 3
80 m
Borgaro (v. Lanzo/v.le Martiri)
Borgaro (v. Lanzo/v.le Martiri)
130 m
Ricariche auto elettriche Ricariche auto elettriche
Borgaro Torinese Lanzo | EnelX
100 m
Palazzetto dello Sport Borgaro | EnelX
420 m
Borgaro Torinese Gramsci | EnelX
470 m
Borgaro Torinese Biblioteca Civica | EnelX
790 m
U2 Supermercato Caselle Torinese | EnelX
2,6 Km
Scuole Scuole
Scuola primaria "Defassi"
380 m
Scuola secondaria di primo grado "Levi"
420 m
Scuola primaria "Grosa"
520 m
Scuola Elementare Edmondo de Amicis
2,7 Km
Demonte
2,7 Km
Farmacia Farmacia
Farmacia
390 m
Farmacia Comunale 25
2,5 Km
Farmacia Comunale 2
2,7 Km
Farmacia San Rocco
2,8 Km
Bertolone
2,8 Km
Ospedali Ospedali
Ospedale Venaria - Emergency
2,8 Km
Ospedali
2,8 Km
Supermercati Supermercati
Supermercati
160 m
Aldi
770 m
Bennet
1,8 Km
Penny Market
2,3 Km
U2
2,5 Km
Negozi Negozi
Negozi
290 m
Pane e Dolcezze
2,7 Km
Il Buono di Me...
2,9 Km
Bar Bar
La Luna
120 m
Bar
230 m
Caffè del Pettegolezzo
2,9 Km
Padiglione d'Ercole
2,9 Km
Ristoranti Ristoranti
du village
180 m
Ristoranti
500 m
Trattoria Port Dij Gai
1,5 Km
Totò e Peppino
2,2 Km
El Chico Loco
2,3 Km
Mostra tutto

Caratteristiche

Rif.:
61135943
Piano:
3 di 4 con ascensore (Piano alto)
Box:
1
Balconi:
3
Camere da letto:
2
Arredamento:
Parziale
Mostra tutto
Prezzo Prezzo
€ 209.000
Rata mutuo Rata mutuo
€ 970 / mese
Spese annue Spese annue
€ 1.400
Proponi il tuo prezzoProponi il tuo prezzo

Classe Energetica

Questo immobile è esente da classe energetica
Anno di costruzione:
1999
Riscaldamento:
Autonomo
Tipo impianto:
A radiatori
Tipo alimentazione:
Metano

Prezzo ridotto di €1 (9%%)

Ti interessa visionare l'immobile?

Fissa un appuntamento  Fissa un appuntamento

Richiedi informazioni

Clicca su Leggi per aprire l'informativa
* Questi campi sono obbligatori

Calcola il tuo mutuo

Semplice e senza impegno
Anticipo

( % )
Mutuo

( % )

pochi semplici passi

inserisci i tuoi dati
Questionario completato
Grazie per aver richiesto un appuntamento senza impegno con un nostro Consulente del Credito e Assicurativo.

Hai inserito correttamente tutti i dati necessari e a breve riceverai una e-mail con un link da convalidare per inviare i tuoi dati.
Affiliato
Studio Borgaro Sas
Via Gramsci, 17 10071 Borgaro Torinese (TO)

Il nostro staff


  • Giosuè Andrea Confalone
    Affiliato

  • Rebecca Gamerro
    Coordinatrice

  • Giorgio Petruzzi
    Affiliato
Via Gramsci, 17 10071 Borgaro Torinese (TO)
Zona: Borgaro Torinese
Mostra su mappa
Orari: Dal Lunedi al Venerdi dalle 09.000 alle 12.30 e dalle 15.00 alle 20.00. Sabato dalle 09.00 alle 12.30 e dalle 15.00 alle 19.00
Affiliato
Studio Borgaro Sas
Via Gramsci, 17 10071 Borgaro Torinese (TO)

2026 Tecnocasa Franchising S.p.A. - P. IVA 08365160152 - Via Monte Bianco 60/A 20089 Rozzano (MI). Ogni agenzia ha un proprio titolare ed è autonoma. Privacy policy | Policy utilizzo | Cookie policy